荒川戸建

29.8万円 管理/共益費 -

東京都荒川区荒川1丁目

日比谷線「三ノ輪」駅徒歩9分

常磐線「三河島」駅徒歩10分

都電荒川線「荒川区役所前」駅徒歩4分

価格
29.8万円 管理/共益費 -
間取り/面積
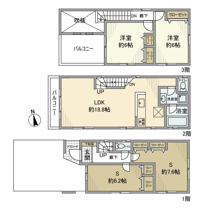
2LDK/100.02㎡
所在地
東京都荒川区荒川1丁目
築年
2012年9月(築13年)
駐車
交通

日比谷線三ノ輪」駅 徒歩9分

常磐線三河島」駅 徒歩10分

都電荒川線荒川区役所前」駅 徒歩4分

荒川戸建の基本情報

物件名
荒川戸建
価格
29.8万円
管理/共益費
-
築年月
2012年9月(築13年)
総戸数
-
所在地
東京都荒川区荒川1丁目
交通

日比谷線三ノ輪」駅 徒歩9分

常磐線三河島」駅 徒歩10分

都電荒川線荒川区役所前」駅 徒歩4分

荒川戸建の詳細情報

設備条件
設備(その他)
    -
駐車場/月額
有/0円 [全長]0/[全幅]0/[全高]0/[総重量]0
用途地域
-
戸数
- / -
取引態様
専任媒介

荒川戸建で募集中の物件

  1. 30.25坪 (100.02㎡)

    29.8万円(9851.24円/坪)

近隣の物件

  1. 荒川区町屋6丁目

    2SLDK (61.94㎡)

    18万円

  2. 荒川区西日暮里4丁目

    3LDK (72.57㎡)

    26万円

  3. 荒川区東日暮里5丁目

    3LDK (63.50㎡)

    24万円

  4. 荒川区東尾久4丁目

    4LDK (96.13㎡)

    18万円

荒川戸建

お気軽にお問い合わせください

無料お問い合わせ

株式会社リロケーション情報センター

03-3352-3456

09:30~17:30

(休: 水曜日)