マリンフォートサンセットウイングライト

27万円 管理/共益費 -

千葉県千葉市美浜区打瀬3丁目5

京葉線「海浜幕張」駅徒歩15分

価格
27万円 管理/共益費 -
間取り/面積
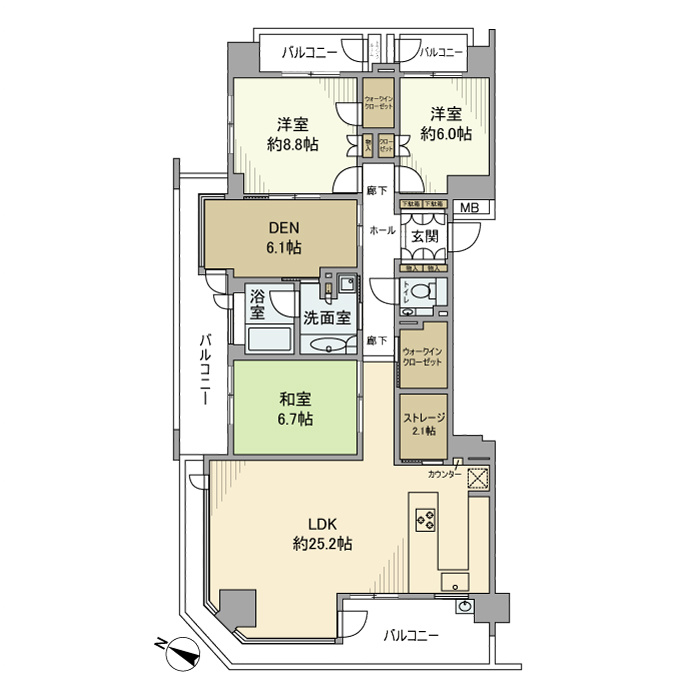
3LDK/119.99㎡
所在地
千葉県千葉市美浜区打瀬3丁目5
築年
2003年6月(築22年)
駐車
交通

京葉線海浜幕張」駅 徒歩15分

マリンフォートサンセットウイングライトの基本情報

物件名
マリンフォートサンセットウイングライト
価格
27万円
管理/共益費
-
築年月
2003年6月(築22年)
総戸数
-
所在地
千葉県千葉市美浜区打瀬3丁目5
交通

京葉線海浜幕張」駅 徒歩15分

マリンフォートサンセットウイングライトの詳細情報

設備条件
  • エレベーター
  • CATV
  • オートロック
  • 宅配ボックス
設備(その他)
    -
駐車場/月額
無/-
用途地域
-
戸数
- / -
取引態様
一般媒介

マリンフォートサンセットウイングライトで募集中の物件

  1. 1504

    36.29坪 (119.99㎡)

    27万円(7440.07円/坪)

周辺施設

  • 千葉市立打瀬中学校の画像

    中学校

    千葉市立打瀬中学校

    599m(8分)

  • リンコス ベイタウン店の画像

    スーパー

    リンコス ベイタウン店

    965m(13分)

  • 三井アウトレットパーク 幕張の画像

    ショッピングセンター

    三井アウトレットパーク 幕張

    1097m(14分)

近隣の物件

  1. 千葉市美浜区浜田1丁目

    2LDK (75.53㎡)

    14.5万円

  2. 千葉市美浜区打瀬1丁目

    3LDK (88.14㎡)

    21万円

マリンフォートサンセットウイングライト

お気軽にお問い合わせください

無料お問い合わせ

株式会社リロケーション情報センター

03-3352-3456

09:30~17:30

(休: 水曜日)